商用午夜视频免费在线观看工程專家談商用午夜视频免费在线观看設計應該考慮的因素
發布人: 午夜影院污在线观看午夜视频免费在线观看設備廠 發布時間:2019.01.10
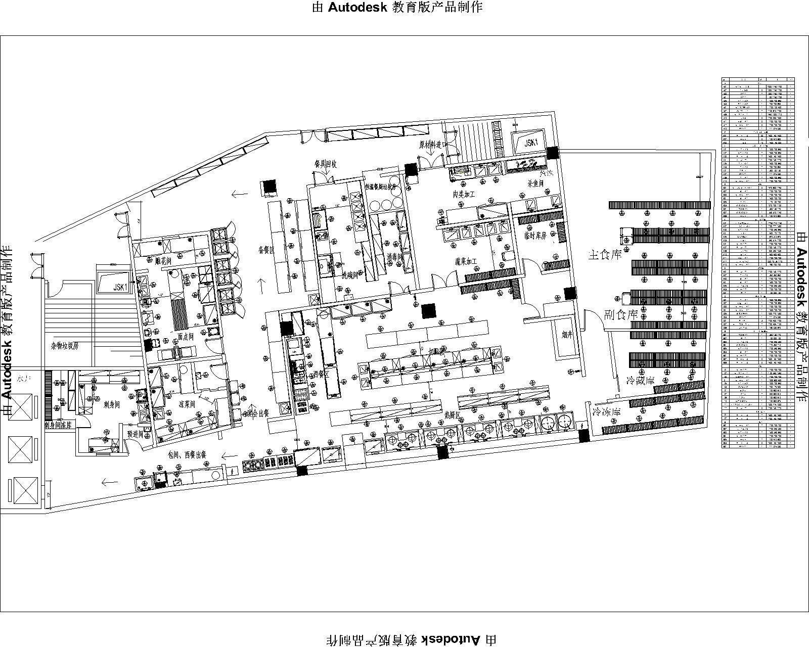
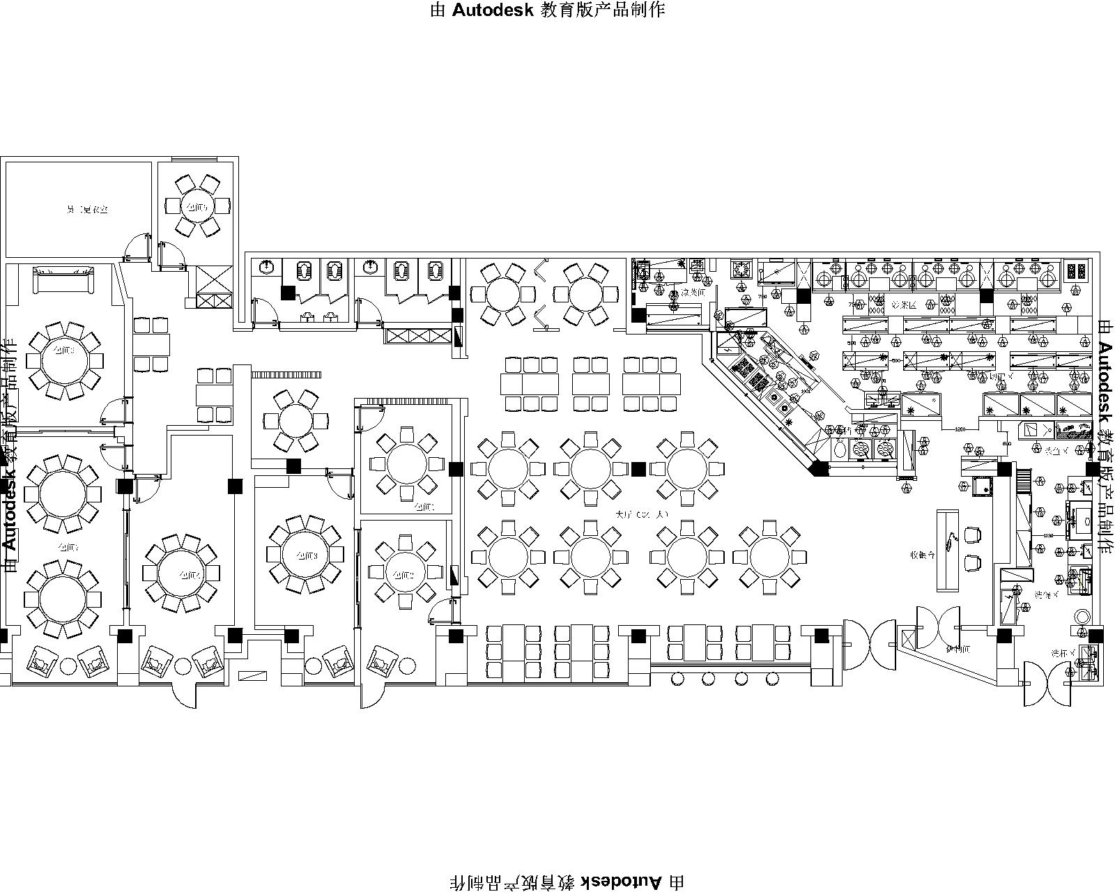
午夜视频免费在线观看是一個飯店、餐廳、酒店、飯店的核心,其直接影響著這些餐飲機構的生產能力和品質。因此,商用午夜视频免费在线观看設計的設計非常的重要,如果午夜视频免费在线观看設計的科學合理,那麽,就會對午夜视频免费在线观看的菜品和效率以及顧客的就餐時間、效率都會產生非常深遠的影響。但是,商用午夜视频免费在线观看的設計卻是 一個非常複雜的問題,需要有專業的經驗豐富的設計人員才能解決這個問題。作為商用午夜视频免费在线观看工程專家,午夜影院污在线观看就來談談商用午夜视频免费在线观看設計需要注意哪些重要因素吧!
商用午夜视频免费在线观看設計時必須尊重午夜视频免费在线观看生產的客觀規律

設計時應全麵了解實際情況,充分尊重午夜视频免费在线观看生產的客觀規律,自覺遵守設計的原則,保證午夜视频免费在线观看生產流程的暢通,避免午夜视频免费在线观看內人員的交叉與碰撞。要考慮各工種人員要相對集中。避免工作人員大幅度走動,避免生產工序顛倒,貨物回流現象,防止出菜人員與午夜视频免费在线观看工作人員相互碰撞。否則,不合理的設計,不僅增加午夜视频免费在线观看投資,而且將在午夜视频免费在线观看生產中暴露出各種不足,增加人工及機械的運營成本,給酒店的管理帶來諸多不便。
實用與方便午夜视频免费在线观看的設計必須符合人體工程學的原理,方便使用,最大限度地減輕操作者的勞動強度,以提高工作效率,降低運營成本。
商用午夜视频免费在线观看設計時必須對空間進行合理的劃分
合理劃分各功能區域,各區域間即獨立又能互相配合,多選用節能環保的優質設備,要有利於其使用、清潔、維修、安全及節能,布局時要考慮到采光、照明和通風,最大限度利用自然條件,節約運營成本。
午夜视频免费在线观看的種類及午夜视频免费在线观看的位置不同,午夜视频免费在线观看的設計布局自然也不同。正如有人說過,世界上除了連鎖店或聯鎖飯店的午夜视频免费在线观看設計布局大致相同之外,不可能再找到兩家午夜视频免费在线观看在設計布局上一致的了。不同類型的午夜视频免费在线观看在設計方麵均有不同的要求。因此,根據午夜视频免费在线观看的種類及午夜视频免费在线观看的位置,設計團隊致力於把午夜视频免费在线观看設計得更加合理化。
另外商用午夜视频免费在线观看設計還應該考慮到一下幾個具體因素:
1商用午夜视频免费在线观看的通風設計
不管午夜视频免费在线观看選配先進的運水煙罩,甚至是直接采用簡捷的排風扇,尤其是配菜、烹調區形成負壓。所謂負壓,即排出去的空氣量要大於補充進入午夜视频免费在线观看的新風量。這樣午夜视频免费在线观看才能保持空氣清新。但在抽排午夜视频免费在线观看主要油煙的同時,也不可忽視烤箱、焗爐、蒸箱、蒸汽鍋以及蒸汽消毒櫃、洗碗機等產生的濁氣、廢氣,要保證所有煙氣都不在午夜视频免费在线观看區域彌漫和滯留。因此在烤箱、焗爐、蒸箱、蒸汽鍋以及蒸汽消毒櫃、洗碗機等產生油煙和蒸氣設備的上方,必須配備強有力的抽排煙設施,力求做到烹調午夜视频免费在线观看每小時換氣50-60次,一般隨時保證午夜视频免费在线观看空氣清新。
2商用午夜视频免费在线观看的明廚設計原則
午夜视频免费在线观看的明廚、明檔。餐館設計明廚、明檔,是餐飲業發展到一定時期的產物。設計明廚、明檔,至少要注意不應因此設計而增加餐廳的油煙、噪聲和有礙觀瞻場景。有些隻宜將生產的最後階段作展示性的明廚設計,實在沒有必要和盤托出。
3商用午夜视频免费在线观看的地麵原則
午夜视频免费在线观看的地麵設計和選材,切不可盲從,必須審慎定奪。在沒有選擇到新穎實用的防滑地磚前,使用紅鋼磚仍不失為有效之舉。因為午夜视频免费在线观看會產生很多廢水,因此,在設計午夜视频免费在线观看地麵材料時午夜视频免费在线观看的安全性才是最重要的。
4商用午夜视频免费在线观看的用水和明溝設計原則
有許多午夜视频免费在线观看在設計水槽(水池)時,由於配備的太少、太小,使得廚師要跑很遠才能找見水池,於是忙起來幹脆就很難顧及清洗,午夜视频免费在线观看的衛生很難令人信服務。午夜视频免费在线观看的明溝,是午夜视频免费在线观看汙水排放的重要通道。可有些午夜视频免费在线观看明溝太淺,或太毛糙,或無高低落差,或無有機連接,使得午夜视频免费在线观看或水地相連,或臭氣熏人,午夜视频免费在线观看很難做到幹爽、清淨。另外,午夜视频免费在线观看也必須設計一些暗溝,以防止廢水內的氣味散出。因此,在進行午夜视频免费在线观看設計時要充分考慮原料化凍、衝洗,廚師取用清水和清潔用水的各種需要,盡可能在合適位置使用的單槽或雙槽水池,切實保證食品生產環境的整潔衛生。
5商用午夜视频免费在线观看的燈光設計原則
餐廳的燈光重文化,午夜视频免费在线观看的燈光重實用。這裏的實用,主要指臨爐炒菜要有足夠的燈光以把握菜肴色澤;案板切配要有明亮的燈光,以有效防止刀傷和追求精細的刀工;出菜打荷的上方要有充足的燈光,切實減少雜草混入並流入餐廳等等。午夜视频免费在线观看燈光不一定要像餐廳一樣豪華典雅、布局整齊,但其作用絕不可忽視。
輔助設計是強化完善餐飲功能的必要補充。輔助設計,主要指的是在餐飲功能的劃分上,既不算直接服務於客人用餐、消費的餐廳、也不屬於菜點生產製作的午夜视频免费在线观看。但少了這些設計,餐廳可能會顯得粗俗不雅,甚至噪雜零亂;午夜视频免费在线观看生產和出品也會變得斷斷續續,甚至殘缺不全。這些輔助設計主要有備餐間和洗碗間等。
6 商用午夜视频免费在线观看燃料庫設計原則
有些商用午夜视频免费在线观看使用的燃料往往是液化氣和柴油。這個時候就需要專門設計一個燃料庫,因此在設計燃料庫一定要把燃料都集中到一個地方擺放,並且燃料庫一定要設計在一個離開明火比較遠的、比較隱蔽的地方。這樣才能保證午夜视频免费在线观看燃料的安全,以免引起火災。在燃料庫的周圍至少應該保證在3米之內不能看見明火。
以上幾點就是午夜影院污在线观看在多年的商用午夜视频免费在线观看設計中總結出來的經驗,掛一漏萬之處是難免的希望對大家能夠有所幫助!
本文內容由四川午夜影院污在线观看午夜视频免费在线观看設備公司提供,部分圖片和文字或來自網絡,如涉及知識產權請於成都午夜视频免费在线观看設備公司午夜影院污在线观看聯係。如需轉載本文,請與有多年商用午夜视频免费在线观看工程經驗的老牌成都午夜视频免费在线观看設備廠家午夜影院污在线观看網站管理員聯係。







