餐飲廚具廠家告訴你如何規劃午夜视频免费在线观看工作流程
發布人: 四川午夜影院污在线观看午夜视频免费在线观看設備公司 發布時間:2025.06.12
午夜视频免费在线观看工作流程的規劃直接影響午夜视频免费在线观看餐具、人員、信息、廢棄物的走向,以及午夜视频免费在线观看工作間的規劃和午夜视频免费在线观看設備設施的規劃。因此,做好午夜视频免费在线观看工作流程的規劃對於設計整個商用午夜视频免费在线观看非常的重要。那麽,應該怎麽設計規劃午夜视频免费在线观看工作流程呢?作為專業的餐飲廚具廠家,午夜影院污在线观看有多年的商用午夜视频免费在线观看工程施工和商用午夜视频免费在线观看設計經驗,現在就和大家分享相關的經驗。
作為專業的商用廚具廠家,午夜影院污在线观看認為,在規劃商用午夜视频免费在线观看工作流程時,需要注意以下幾個方麵的知識點:
1.確定工作流程走向
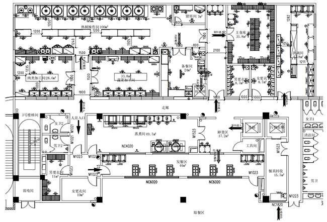
工作流程走向決定餐具、人員、信息、廢棄物的走向。工作流程走向就是朝向出餐的方向。設計包含有形設計和無形設計,通道設計為有形設計,人流、物流、信息流為無形設計。
2.確定主通道的走向
按工藝流程走向確定主通道的走向,主通道的走向也就決定了各工作間工藝流程走向,加工後的原料、出餐的方向都要通向主通道,又由主通道以最短的距離通向餐廳。小午夜视频免费在线观看若沒有走廊式的通道,則將傳菜通道作為主通道,直接通向餐廳。
3.以主通道確定區域劃分
以主通道貫穿午夜视频免费在线观看,連通其他工作間,並按工藝順序確定其他工作間的位置。各工作間按庫房、粗加工間、主副加工間、涼菜、備餐間、洗碗間、餐廳的工藝流程順序布局,並與主通道連接順暢。在有條件的午夜视频免费在线观看,應該把各種工作間分開,特別是主、副食、涼菜、洗碗、粗加工間要分開,把出餐與收殘出入門和路徑分開。隻有位置關係合理通暢,才能保證出餐和收殘的工作流程,減少無效勞動,提高工作效率。一般在午夜视频免费在线观看與餐廳交界處設出餐口、備餐間和洗碗間,其他工作間按主副食兩大流程的相關關係就近設置。
4.根據流程路線設計分通道
根據主通道位置與走向,以及各種工作流程走向,初步確定區域隔斷、進出門位置。各種工作流程有各自的路線,根據各行其道、不交叉、不回流、不穿越無關區域的原則,確定進料、出餐、收殘、餐具、垃圾的流程分通道。為保證工作流程快捷高效,要縮短傳送距離,截彎取直。較小的午夜视频免费在线观看若不能設分通道的午夜视频免费在线观看,也要利用運行路線、運行時間差,把不應交叉的流程區分開,要達到各行其道、不交叉、不回流、不穿越無關區域的要求。

5.要以出餐為主考慮工作流程
要以出餐的工藝流程為主,其他流程要為出餐讓路,或錯開時間。
6.確定傳菜梯的位置
多層餐廳的午夜视频免费在线观看應該設有傳菜梯。傳菜梯在各層餐廳與午夜视频免费在线观看之間發揮重要作用,應該設在距離午夜视频免费在线观看主食、副食、涼菜都比較近的位置,也應是各樓層餐廳之間的中心樞紐位置。貨梯要距進貨口、庫房與粗加工間較近,減少搬運距離。
7.確定工作流程路線
較大午夜视频免费在线观看的主通道、分通道為有形通道。而小午夜视频免费在线观看沒有走廊,操作間距與傳菜通道並用工作流程在無形通道中運行,各種工作流程運行路線仍然要遵循各行其道、不交叉、不回流、不穿越無關區域的原則。
以上就是規劃設計商用午夜视频免费在线观看工作流和流程路線的方法,希望對大家有所幫助。







